Corporation Rise
Sold
Property Details
Address
Corporation Rise
District
D22 Boon Lay / Jurong / Tuas
Nearest MRT
Lakeside MRT (EW26)
Boon Lay MRT (EW27)
Chinese Garden MRT (EW25)
Property Type
5 Room Landed
Tenure
99 years
PSF
1,548.95
Location
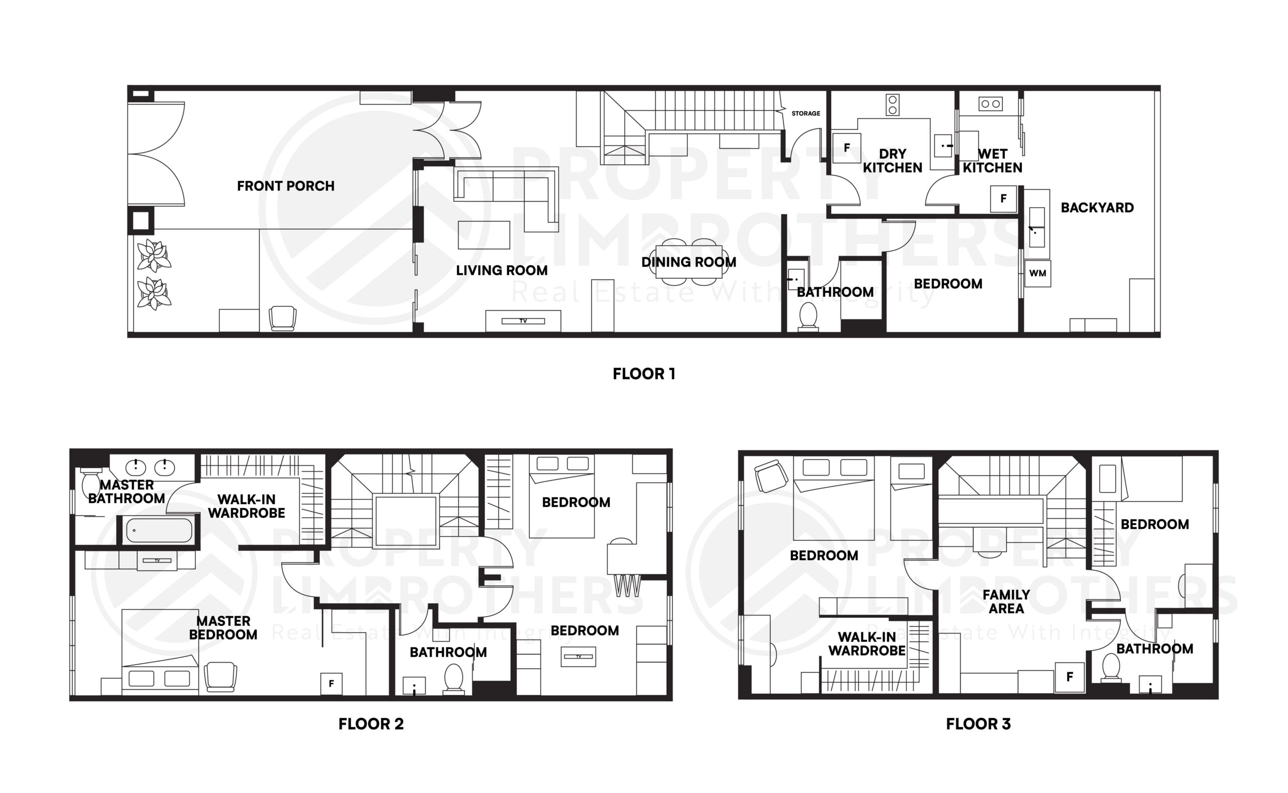
Property Overview
- 5-bedroom
- 4-bathroom
- 1,614 sqft
- 1,548.95 psf
Discover your dream 3-storey inter-terrace in District 22, a hidden oasis of comfort and convenience. With 5 bedrooms convertible to 6, 4 bathrooms, and a bright, breezy layout, this 1,614 sqft home offers space to flourish. Embrace positive energy with a North-West facing main door and soak up sunlight in the South-East oriented backyard. Seize this chance for serene living with easy access to amenities. Your perfect home awaits!
Agent Info
Eunice Lam
Associate Senior Investment Consultant
CEA Reg. No: R046449C / L3010958I
Features
- 3 Storey Mixed Landed Zoning
- 3 Storey Inter-Terrace
- 99 Years From 1996
- Healthy Balance Lease of 72 Years
- Regular Layout
- Bright & Breezy
- No Built-In Lift
- Length 25M x Width 6M
- 5 Bedrooms That Can Potentially Be Converted Into 6 Bedrooms
- Main Door Facing: North-West
- Back of House Facing: South-East
Sun Direction
Virtual 3D Tour
Home Tour Video
Agent Info
Eunice Lam
Associate Senior Investment Consultant
CEA Reg. No: R046449C / L3010958I
Tour with a Collaborative Consultant
Feel free to select a date at your convenience, and we will provide you with an exceptional journey
When are you available?
Choose one or more times that work for you.
- 10:00 AM
- 11:00 AM
- 12:00 PM
- 1:00 PM
- 2:00 PM
- 3:00 PM
- 4:00 PM
- 5:00 PM
- 6:00 PM
- 7:00 PM
- 8:00 PM
Share some information about yourself here
Thank You for connecting with PropertyLimBrothers! 🙌
Your submission has been successfully received. Our PLBCare Team will be reaching out to you shortly. Have a great day ahead!
Date
Selected Time
Connectivity
- Taman Jurong Shopping Centre
- Boon Lay Shopping Centre
- Jurong Point
- Pioneer Mall
- Fairprice @ 399 Yung Sheng Road
- Fairprice @ 63 Yung Kuang Road
- Taman Jurong Market & Food Centre
- Boon Lay Place Market & Food Village
- Lakeside Grove Playground
- Taman Jurong Greens
- Taman Jurong Community Club
- Taman Jurong Shopping Centre
- Boon Lay Shopping Centre
- Jurong Point
- Pioneer Mall
- Fairprice @ 399 Yung Sheng Road
- Fairprice @ 63 Yung Kuang Road
- Taman Jurong Market & Food Centre
- Boon Lay Place Market & Food Village
- Lakeside Grove Playground
- Taman Jurong Greens
- Taman Jurong Community Club
- Lakeside Primary School (Within 1 km)
- Boon Lay Garden Primary School (Within 1 km)
- Rulang Primary School (Within 1 km)
- Shuqun Primary School (Within 1 km)
- Yuan Ching Secondary School (Within 1 km)
- Yuhua Secondary School (Within 1 km)
- River Valley High School (Within 1 km)
- Jurong Secondary School (Within 1 - 2 km)
- Fuhua Secondary School (Within 1 - 2 km)
- Corporation Primary School (Within 1 - 2 km)
- Jurong Primary School (Within 1 - 2 km)
- Lakeside Primary School (Within 1 km)
- Boon Lay Garden Primary School (Within 1 km)
- Rulang Primary School (Within 1 km)
- Shuqun Primary School (Within 1 km)
- Yuan Ching Secondary School (Within 1 km)
- Yuhua Secondary School (Within 1 km)
- River Valley High School (Within 1 km)
- Jurong Secondary School (Within 1 - 2 km)
- Fuhua Secondary School (Within 1 - 2 km)
- Corporation Primary School (Within 1 - 2 km)
- Jurong Primary School (Within 1 - 2 km)
Get in touch
Eunice Lam
Associate Senior Investment Consultant
CEA Reg. No: R046449C / L3010958I
Jollene Leow
Associate Senior Consultant
CEA Reg. No.: R065475H / L3010958I

