MacPherson Garden Estate
Sold
Property Details
Address
Jalan Mulia, Singapore
District
D13 Macpherson / Potong Pasir
Nearest MRT
Mattar MRT (DT25)
Tai Seng MRT
Bartley MRT (CC12)
Property Type
4 Room Landed
Tenure
Freehold
PSF
3,741.50
Location
Property Overview
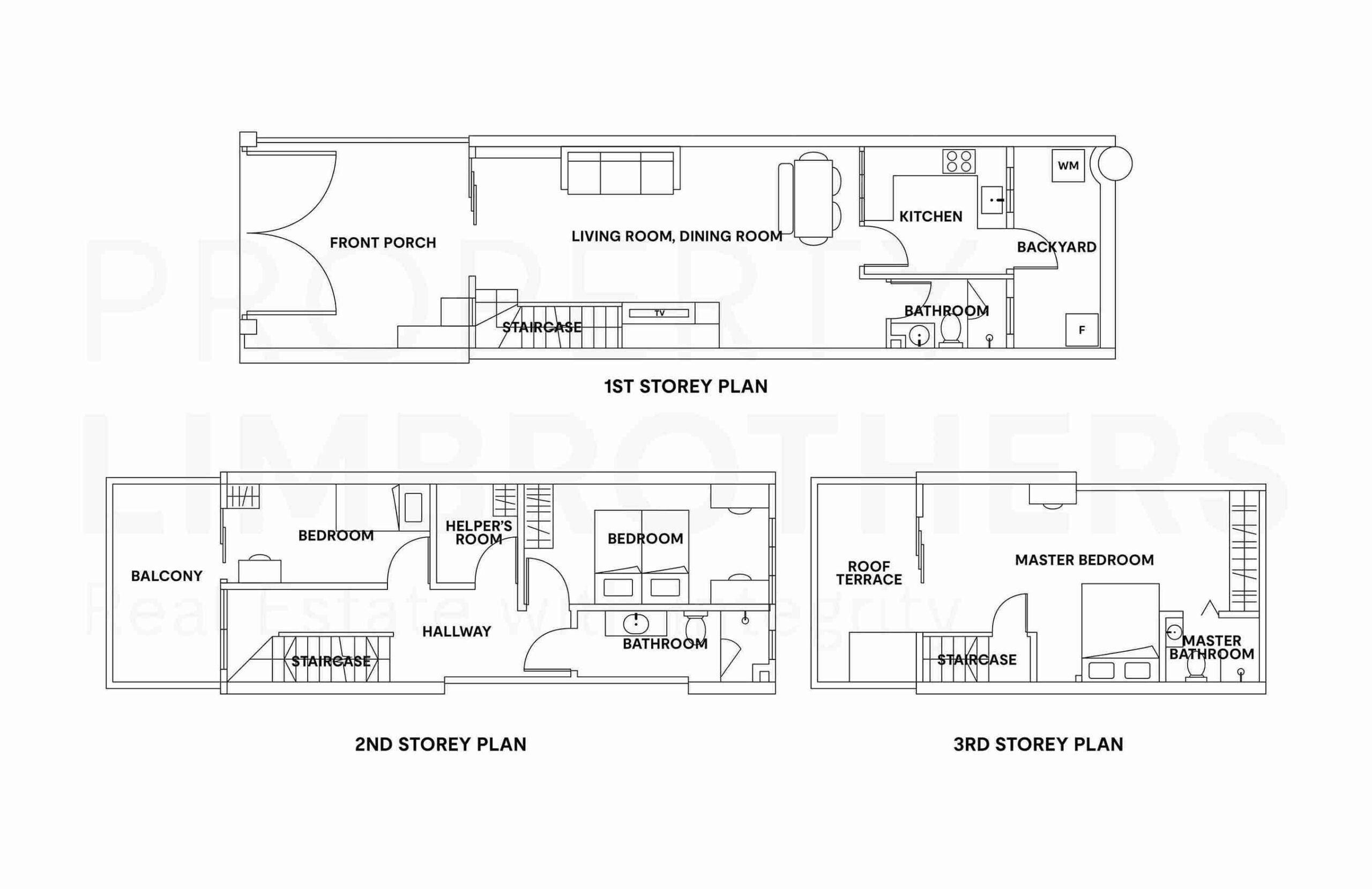
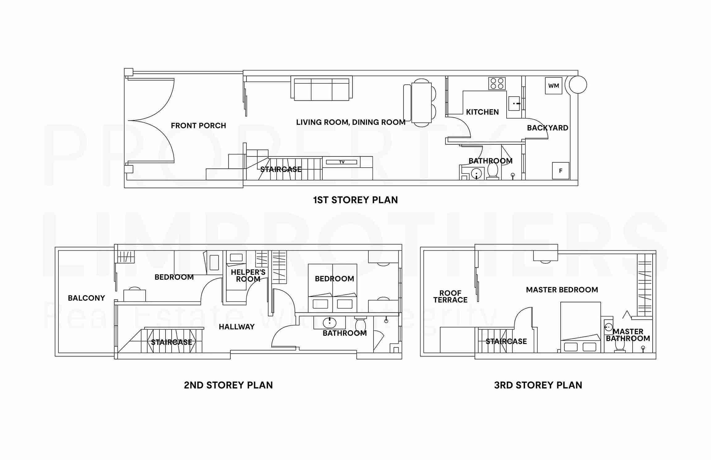
- 4-bedroom
- 3-bathroom
- 882 sqft
- 3,741.50 psf
This freehold 4-bedroom, 3-bath home, with approx. 1,780 sqft of living space, underwent a comprehensive A&A in 2017, with close to $800k invested. Offering a spacious layout with no split-levels on level 1, it features a high-pitched roof in the master bedroom and ample parking for 2 cars. Enjoy easy access to MRT stations (Tai Seng, Mattar, Potong Pasir) and nearby shopping malls such as Grantral Mall. Located in a tranquil mixed-landed enclave, this home offers privacy and convenient access to major expressways.
Agent Info
Features
- Close to $800k spent on A&A in 2017
- Can park 2 cars
- High Pitched Roof 3.5m in Master Bedroom
- Maximum GFA - 2 storey + attic
- No Split level on L1
- 1 Master Ensuite + 3 Common Bedrooms
- Walk to Grantrall Mall, Breadtalk HQ & surrounding eateries
- Close to Circle Line (Tai Seng), Downtown Line (Mattar) and North East Line (Potong Pasir, Woodleigh)
- Frontage est 4.5m
- Depth est 18.3m
- Situated in 2 storey mixed-landed enclave
- Tranquil & Private
- Easy access to CTE, PIE & KPE
- Gate Facing: Mainly South
- Main Door Facing: Mainly South
- Back of House Facing: Mainly North
Sun Direction
Virtual 3D Tour
Agent Info
Tour with a Collaborative Consultant
Feel free to select a date at your convenience, and we will provide you with an exceptional journey
When are you available?
Choose one or more times that work for you.
- 10:00 AM
- 11:00 AM
- 12:00 PM
- 1:00 PM
- 2:00 PM
- 3:00 PM
- 4:00 PM
- 5:00 PM
- 6:00 PM
- 7:00 PM
- 8:00 PM
Share some information about yourself here
Thank You for connecting with PropertyLimBrothers! 🙌
Your submission has been successfully received. Our PLBCare Team will be reaching out to you shortly. Have a great day ahead!
Date
Selected Time
Connectivity
- Macpherson Mall
- Prime Supermarket @ 1 Upper Aljunied Ln
- Joo Seng Food Place Center
- KA Cafe Food Court
- LC Food Centre @ 8 Burn Rd
- Killiney @ Tai Seng Centre
- Grantral Mall
- M.Connect @ Grantral Mall
- Scarlett Supermarket @ Grantral Mall
- NTUC Fairprice @ 77 Circuit Rd
- Circuit Road Market & Food Centre
- Food Republic @ BreadTalk HQ
- Sheng Siong Supermarket @ 18B Circuit Rd
- The Woodleigh Mall
- The Venue Shoppes
- The Poiz Centre
- Macpherson Mall
- Prime Supermarket @ 1 Upper Aljunied Ln
- Joo Seng Food Place Center
- KA Cafe Food Court
- LC Food Centre @ 8 Burn Rd
- Killiney @ Tai Seng Centre
- Grantral Mall
- M.Connect @ Grantral Mall
- Scarlett Supermarket @ Grantral Mall
- NTUC Fairprice @ 77 Circuit Rd
- Circuit Road Market & Food Centre
- Food Republic @ BreadTalk HQ
- Sheng Siong Supermarket @ 18B Circuit Rd
- The Woodleigh Mall
- The Venue Shoppes
- The Poiz Centre
- Cedar Primary School (Within 1 km)
- Canossa Catholic Primary School (Within 1 km)
- Bartley Secondary School (Within 1 km)
- Cedar Girls' Secondary School (Within 1 km)
- Maris Stella High School (Within 1 km)
- Cedar Primary School (Within 1 km)
- Canossa Catholic Primary School (Within 1 km)
- Bartley Secondary School (Within 1 km)
- Cedar Girls' Secondary School (Within 1 km)
- Maris Stella High School (Within 1 km)
Get in touch
Wirdayu Safie
Associate Senior Consultant
CEA Reg. No: R058548G / L3010958I
Zoe Lim
Associate Senior Consultant
CEA Reg. No: R064738F / L3010958I

