Mill Point
Sold
Property Details
Address
3 Zion Close, Singapore 247813
District
D10 Tanglin / Holland / Bukit Timah
Nearest MRT
Great World MRT (TE15)
Havelock MRT (TE16)
Tiong Bahru MRT (EW17)
Property Type
2 Room Condo
Developer
SB Development Pte Ltd
Tenure
999 years
PSF
2,513.66
Floor Level
High Level
TOP
2004
Location
Property Overview
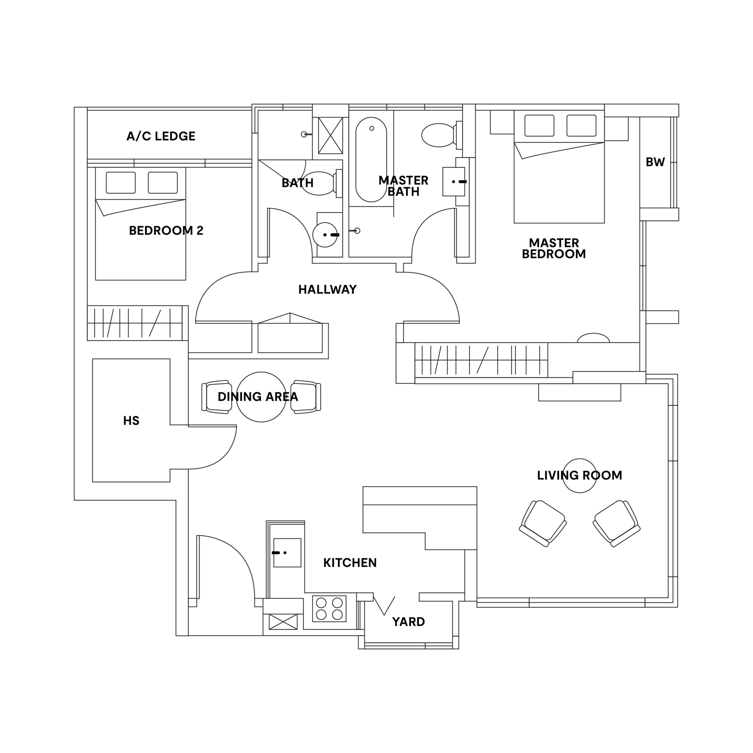
- 2-bedroom
- 2-bathroom
- 915 sqft
- 2,513.66 psf
High-floor 2-bed, 2-bath unit in Mill Point with unblocked views and excellent natural light. Spacious 915 sqft layout with no balcony—fully usable space. Features squarish layout, open kitchen, built-in wardrobes, air-conditioning, and home shelter. South-facing front door, East-facing living. Vacant possession, pure selling. 999-year lease from 1877. Prime District 10 location, just 380m from Great World MRT and steps from Great World City, Valley Point, and top schools. Facilities include pool, gym, BBQ, and jacuzzi. Ideal for homebuyers or investors seeking central living with long lease tenure. Monthly maintenance: ~$483.33.
Agent Info
Features
- 2 Bedrooms + 2 Bath
- Unblock View
- Squarish Layout
- No Balcony
- Bright & Breezy Unit
- All 2 Bedrooms comes with Build-in Wardrobes and Air Con
- Open Kitchen
- Front Door facing: South
- Living: East
- Home Shelter
- Pure Selling
- Vacant Procession
- Maintenance fee + Sinking Fund $1440 per quarter / $480 per mth
Facilities
- Swimming Pool
- Jacuzzi
- BBQ
- Gym
Sun Direction
Virtual 3D Tour
Home Tour Video
Agent Info
Tour with a Collaborative Consultant
Feel free to select a date at your convenience, and we will provide you with an exceptional journey
When are you available?
Choose one or more times that work for you.
- 10:00 AM
- 11:00 AM
- 12:00 PM
- 1:00 PM
- 2:00 PM
- 3:00 PM
- 4:00 PM
- 5:00 PM
- 6:00 PM
- 7:00 PM
- 8:00 PM
Share some information about yourself here
Thank You for connecting with PropertyLimBrothers! 🙌
Your submission has been successfully received. Our PLBCare Team will be reaching out to you shortly. Have a great day ahead!
Date
Selected Time
Connectivity
- Zion Riverside Food Centre
- Great World City
- CS Fresh @ Great World City
- MEIDI-YA Supermarket @ Great World City
- Food Junction @ Great World City
- Valley Point Shopping Centre
- Little Farms Market @ Valley Point Shopping Centre
- NTUC FairPrice @ Valley Point Shopping Centre
- Roxy Square KopiTiam @ 40 Beo Cres
- Havelock Road Cooked Food Centre
- Concorde Shopping Centre
- Tiong Bahru Plaza
- Don Don Donki @ Tiong Bahru Plaza
- Zion Riverside Food Centre
- Great World City
- CS Fresh @ Great World City
- MEIDI-YA Supermarket @ Great World City
- Food Junction @ Great World City
- Valley Point Shopping Centre
- Little Farms Market @ Valley Point Shopping Centre
- NTUC FairPrice @ Valley Point Shopping Centre
- Roxy Square KopiTiam @ 40 Beo Cres
- Havelock Road Cooked Food Centre
- Concorde Shopping Centre
- Tiong Bahru Plaza
- Don Don Donki @ Tiong Bahru Plaza
- River Valley Primary School (Within 1 km)
- Alexandra Primary School (Within 1 km)
- Gan Eng Seng School (Within 1 km)
- Zhangde Primary School (Within 1 km)
- Outram Secondary School (Within 1 - 2 km)
- Crescent Girls' School (Within 1 - 2 km)
- River Valley Primary School (Within 1 km)
- Alexandra Primary School (Within 1 km)
- Gan Eng Seng School (Within 1 km)
- Zhangde Primary School (Within 1 km)
- Outram Secondary School (Within 1 - 2 km)
- Crescent Girls' School (Within 1 - 2 km)
Get in touch
Rachel Koh
Associate Senior Consultant
CEA Reg. No: R020669I / L3010958I

