Rivercove Residences
Sold
Property Details
Address
26 Anchorvale Lane, Singapore 544587
District
D19 Hougang / Punggol / Sengkang
Nearest MRT
Tongkang LRT (SW7)
Layar LRT (SW6)
Sengkang Depot MRT (NEL)
Property Type
4 Room Condo
Developer
Hoi Hup Sunway Sengkang Pte Ltd
Tenure
N.A.
PSF
1,644.74
Floor Level
High Level
TOP
2020
Location
Property Overview
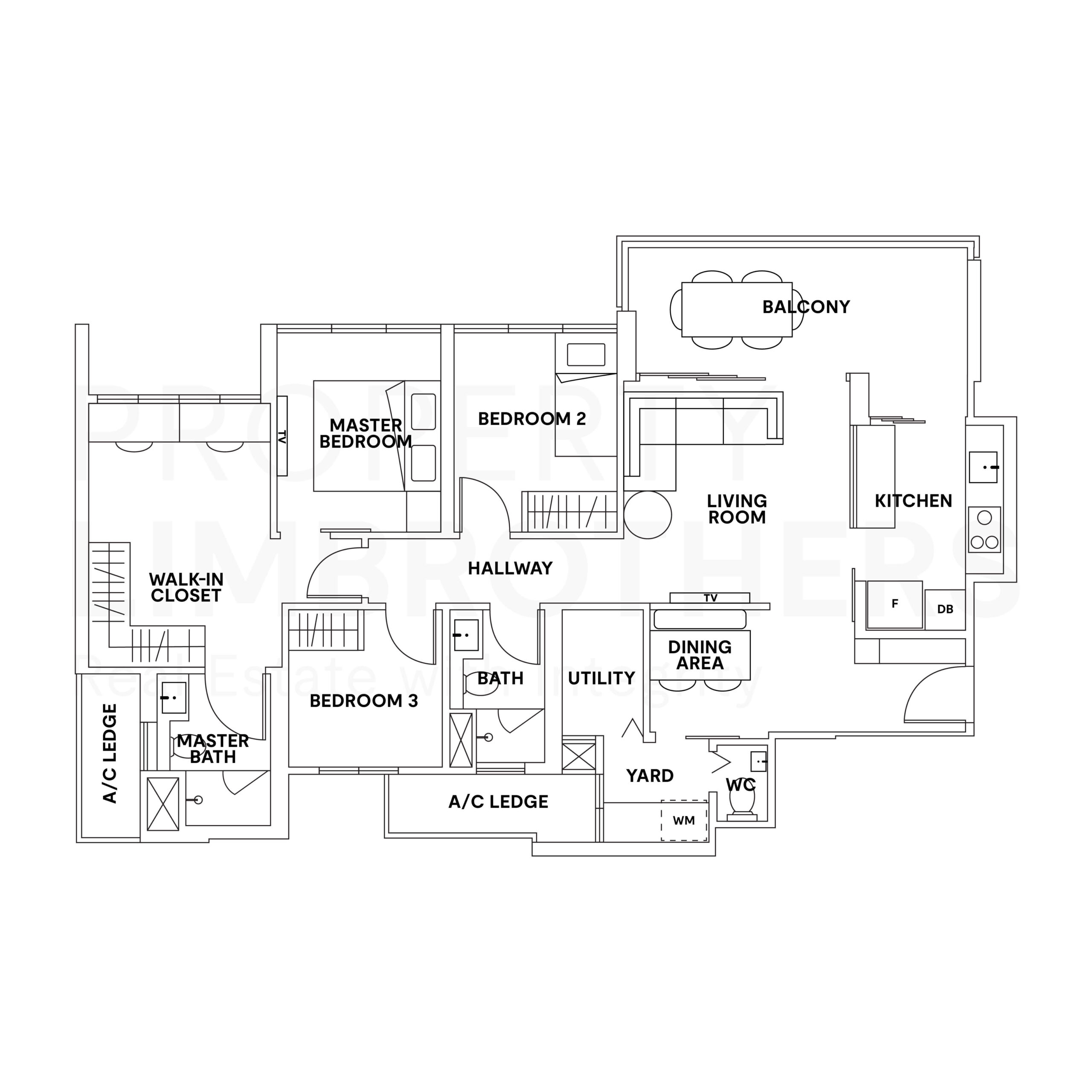
- 4-bedroom
- 2-bathroom
- 1,216 sqft
- 1,644.74 psf
Spacious 4-bedroom + utility unit with yard, perched on a high floor with unblocked views. This 1,216 sqft home features a dual galley kitchen, Ziptrak-installed balcony, and a fully functional layout. Renovated with $150K of premium finishes—move-in ready condition! East-facing main door and north-facing balcony ensure bright, breezy living. Located in a modern condo (TOP 2020) with full facilities and shuttle service to Sengkang MRT. Surrounded by malls, hawker centres, top schools, and LRT stations. Ideal for families seeking space, convenience, and comfort in a vibrant yet peaceful neighbourhood.
Agent Info
Features
- 4 Bedrooms + Utility + Yard + 2 Bath + WC
- High Floor Unit with Unblocked View from Balcony
- Fully Functional & Efficient Floor Plan
- Ziptrak Installed at Balcony
- Dual Galley Kitchen with Direct Access to Balcony
- Well-maintained & Move-in Ready Condition with $150K Renovations Done
- Main Door Facing: East
- Balcony Facing: North
Facilities
- 50m Lap Pool
- Leisure Pools
- Gym
- Multi-Purpose Sports Court
- Function Rooms
- BBQ Area
- Steam Room
Sun Direction
Virtual 3D Tour
Home Tour Video
Agent Info
Tour with a Collaborative Consultant
Feel free to select a date at your convenience, and we will provide you with an exceptional journey
When are you available?
Choose one or more times that work for you.
- 10:00 AM
- 11:00 AM
- 12:00 PM
- 1:00 PM
- 2:00 PM
- 3:00 PM
- 4:00 PM
- 5:00 PM
- 6:00 PM
- 7:00 PM
- 8:00 PM
Share some information about yourself here
Thank You for connecting with PropertyLimBrothers! 🙌
Your submission has been successfully received. Our PLBCare Team will be reaching out to you shortly. Have a great day ahead!
Date
Selected Time
Connectivity
- Sheng Siong Supermarket @ 351 Anchorvale Rd
- Sengkang ActiveSG Sports Centre
- Fernvale Hawker Centre & Market
- The Seletar Mall
- FairPrice Finest @ The Seletar Mall
- Anchorvale Village Hawker Centre
- Kopitiam Square @ 10 Sengkang Square
- Prime Supermarket @ Buangkok Square Mall
- Sengkang Riverside Park
- Compass One
- Cold Storage @ Compass One
- Sengkang Grand Mall
- Sheng Siong Supermarket @ 351 Anchorvale Rd
- Sengkang ActiveSG Sports Centre
- Fernvale Hawker Centre & Market
- The Seletar Mall
- FairPrice Finest @ The Seletar Mall
- Anchorvale Village Hawker Centre
- Kopitiam Square @ 10 Sengkang Square
- Prime Supermarket @ Buangkok Square Mall
- Sengkang Riverside Park
- Compass One
- Cold Storage @ Compass One
- Sengkang Grand Mall
- Anchor Green Primary School (Within 1 km)
- Pei Hwa Secondary School (Within 1 km)
- Nan Chiau High School (Within 1 km)
- Nan Chiau Primary School (Within 1 km)
- Sengkang Green Primary School (Within 1 km)
- Springdale Primary School (Within 1 km)
- Fern Green Primary School (Within 1 km)
- Anchor Green Primary School (Within 1 km)
- Pei Hwa Secondary School (Within 1 km)
- Nan Chiau High School (Within 1 km)
- Nan Chiau Primary School (Within 1 km)
- Sengkang Green Primary School (Within 1 km)
- Springdale Primary School (Within 1 km)
- Fern Green Primary School (Within 1 km)
Get in touch
Alan Koh
Associate Senior Investment Consultant
CEA Reg. No: R002919B / L3010958I
Shaun Tham
Associate Consultant
CEA Reg. No: R068824D / L3010958I

