Sembawang Hills Drive
Negotiable
$ 6,980,000
Property Details
Address
Sembawang Hills Drive, Singapore
District
D20 Ang Mo Kio / Bishan / Thomson
Nearest MRT
Lentor MRT (TE5)
Yio Chu Kang MRT (NS15)
Ang Mo Kio MRT (NS16)
Property Type
6 Room Landed
Tenure
Freehold
PSF
2,266.97
Location
Property Overview
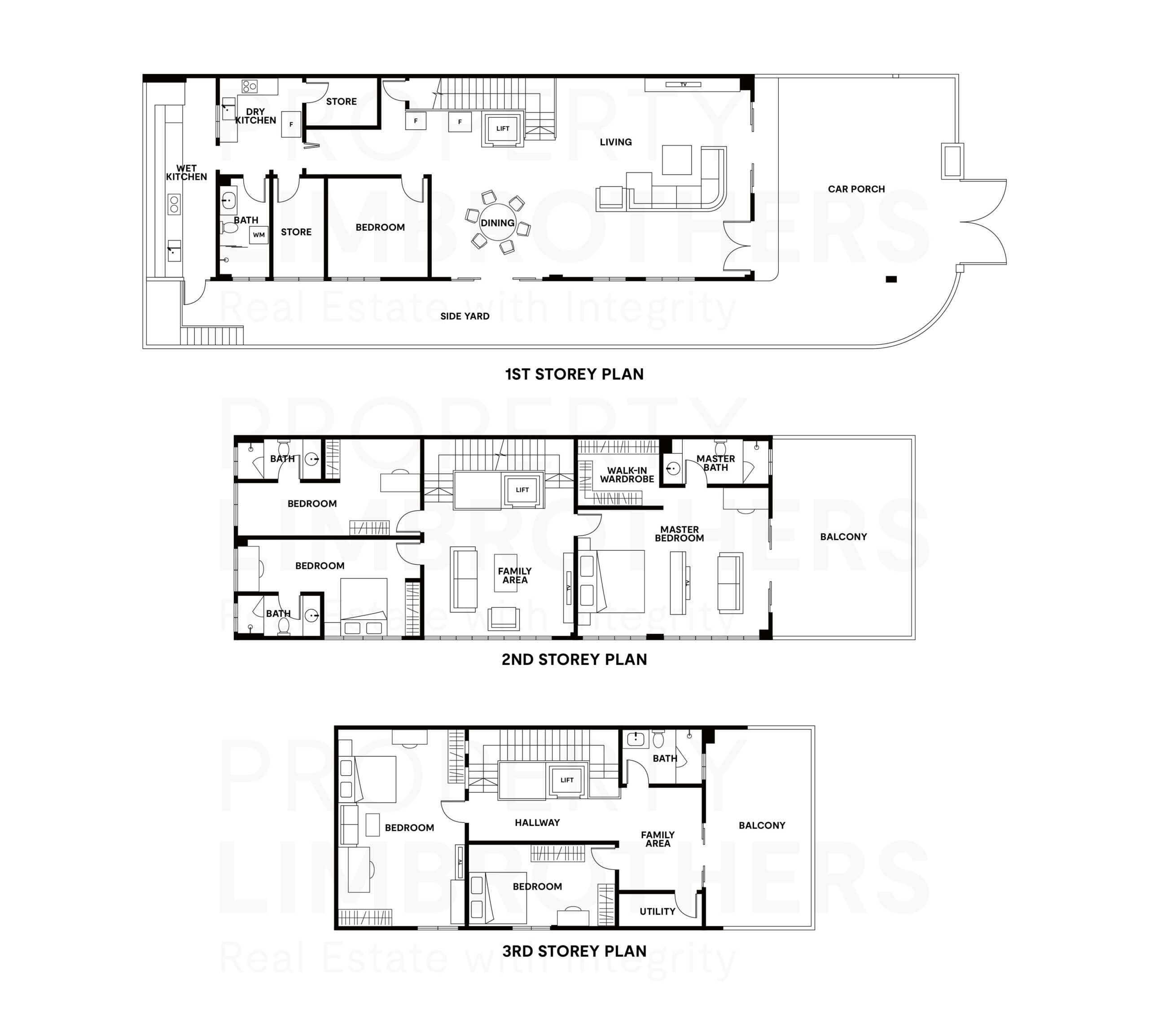
- 6-bedroom
- 5-bathroom
- 3,079 sqft
- 2,266.97 psf
Freehold 2.5-storey corner terrace in Sembawang Hills Estate, just 650m from CHIJ St. Nicholas Girls’ School. Featuring 6 bedrooms, 5 bathrooms, a helper’s room, and a lift, this bright and spacious home was renovated in 2017. Enjoy tranquil living surrounded by greenery, with Lower Peirce Reservoir and MacRitchie nearby. Excellent connectivity via Mayflower MRT and proximity to top schools, malls, and eateries make this the ideal family home blending comfort, convenience, and modern elegance.
Agent Info
Tan Yong Zhun
Associate Lead Consultant, KW Singapore
CEA Reg. No.: R064937Z / L3011034Z
Features
- 6 Bedrooms + 5 Bathrooms + Helper’s Room
- 2.5 Storey Corner Terrace
- Lift Already Installed
- Granny’s Room on Lvl 1
- A&A Done in 2017
- Well Ventilated & Ample Natural Lighting Into The Unit
- Minutes To Lower Peirce Reservoir and MacRitchie Treetop Walk
- Main Gate Direction: Predominantly South
Sun Direction
Virtual 3D Tour
Home Tour Video
Agent Info
Tan Yong Zhun
Associate Lead Consultant, KW Singapore
CEA Reg. No.: R064937Z / L3011034Z
Tour with a Collaborative Consultant
Feel free to select a date at your convenience, and we will provide you with an exceptional journey
When are you available?
Choose one or more times that work for you.
- 10:00 AM
- 11:00 AM
- 12:00 PM
- 1:00 PM
- 2:00 PM
- 3:00 PM
- 4:00 PM
- 5:00 PM
- 6:00 PM
- 7:00 PM
- 8:00 PM
Share some information about yourself here
Thank You for connecting with PropertyLimBrothers! 🙌
Your submission has been successfully received. Our PLBCare Team will be reaching out to you shortly. Have a great day ahead!
Date
Selected Time
Connectivity
- Casuarina Curry (Thomson)
- Sembawang Hill Food Centre
- Ang Mo Supermarket @ 260 Ang Mo Kio St 21
- Hong Ji Claypot Herbal Bak Kut The
- Mayflower Market & Food Centre
- Sheng Siong Supermarket @ 233 AMK Ave 3
- Lower Peirce Reservoir
- Djitsun Mall
- Jubilee Square
- MacRitchie Treetop Walk
- Thomson Plaza
- AMK Hub
- FairPrice Xtra @ AMK Hub
- Springleaf Nature Park
- Casuarina Curry (Thomson)
- Sembawang Hill Food Centre
- Ang Mo Supermarket @ 260 Ang Mo Kio St 21
- Hong Ji Claypot Herbal Bak Kut The
- Mayflower Market & Food Centre
- Sheng Siong Supermarket @ 233 AMK Ave 3
- Lower Peirce Reservoir
- Djitsun Mall
- Jubilee Square
- MacRitchie Treetop Walk
- Thomson Plaza
- AMK Hub
- FairPrice Xtra @ AMK Hub
- Springleaf Nature Park
- CHIJ St Nicholas Girls’ School (Within 1 km)
- Mayflower Secondary School (Within 1 - 2 km)
- Peirce Secondary School (Within 1 - 2 km)
- Ang Mo Kio Primary School (Within 1 - 2 km)
- Yio Chu Kang Secondary School (Within 1 - 2 km)
- Mayflower Primary School (Within 1 - 2 km)
- Anderson Primary School (Within 1 - 2 km)
- Ang Mo Kio Secondary School (Within 1 - 2 km)
- Ai Tong School (Within 1 - 2 km)
- Eunoia Junior College (Within 2 - 3 km)
- Anderson Secondary School (Within 2 - 3 km)
- Nanyang Polytechnic (Within 2 - 3 km)
- CHIJ St Nicholas Girls’ School (Within 1 km)
- Mayflower Secondary School (Within 1 - 2 km)
- Peirce Secondary School (Within 1 - 2 km)
- Ang Mo Kio Primary School (Within 1 - 2 km)
- Yio Chu Kang Secondary School (Within 1 - 2 km)
- Mayflower Primary School (Within 1 - 2 km)
- Anderson Primary School (Within 1 - 2 km)
- Ang Mo Kio Secondary School (Within 1 - 2 km)
- Ai Tong School (Within 1 - 2 km)
- Eunoia Junior College (Within 2 - 3 km)
- Anderson Secondary School (Within 2 - 3 km)
- Nanyang Polytechnic (Within 2 - 3 km)
Get in touch
John Lin
Associate Senior Consultant
CEA Reg. No: R063545Z / L3010958I
Tan Yong Zhun
Associate Lead Consultant, KW Singapore
CEA Reg. No.: R064937Z / L3011034Z

