Siglap V
View to Offer
$ 1,225,000
Property Details
Address
2 First Street, Singapore 458278
District
D15 East Coast / Marine Parade
Nearest MRT
Siglap MRT (TE28)
Bedok MRT (EW5)
Kembangan MRT (EW6)
Property Type
2 Room Condo
Developer
DB2 Realty Developer
Tenure
Freehold
PSF
1,477.68
Floor Level
Penthouse
TOP
2012
Location
Property Overview
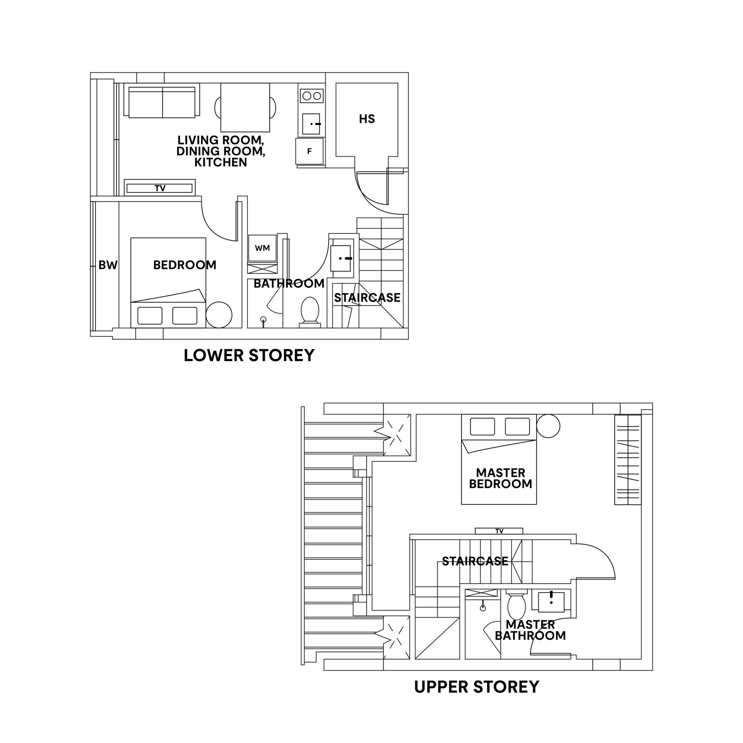
- 2-bedroom
- 2-bathroom
- 829 sqft
- 1,477.68 psf
This rare freehold 2-bed, 2-bath duplex penthouse in Siglap V offers modern city-fringe living with privacy and lifestyle convenience. Spanning 829 sqft, it features high ceilings, an open-concept kitchen, and a master suite occupying the entire upper floor. Located in a low-density boutique development with pool, gym, and retail shops below. Just 1km to Siglap MRT and near top schools, malls, eateries, and East Coast Park. Ideal for own stay or investment.
Agent Info
Features
- 2 Bed 2 Bath
- Duplex penthouse layout
- Efficient & functional layout
- Spacious living & dining areas with high ceilings
- Open concept kitchen
- High ceiling on both levels
- Entire upper floor for Master Bedroom
- Exclusive low-density development
Facilities
- Swimming Pool
- Gym
- Carpark
Sun Direction
Virtual 3D Tour
Home Tour Video
Agent Info
Tour with a Collaborative Consultant
Feel free to select a date at your convenience, and we will provide you with an exceptional journey
When are you available?
Choose one or more times that work for you.
- 10:00 AM
- 11:00 AM
- 12:00 PM
- 1:00 PM
- 2:00 PM
- 3:00 PM
- 4:00 PM
- 5:00 PM
- 6:00 PM
- 7:00 PM
- 8:00 PM
Share some information about yourself here
Thank You for connecting with PropertyLimBrothers! 🙌
Your submission has been successfully received. Our PLBCare Team will be reaching out to you shortly. Have a great day ahead!
Date
Selected Time
Connectivity
- Cold Storage @ Siglap V
- Siglap Centre
- NTUC FairPrice @ Siglap New Market
- East Coast Lagoon Food Village
- Bedok Mall
- i12 Katong
- 50A Marine Terrace Market
- Marine Parade Central
- Parkway Parade
- Bedok 85 Market
- Giant Supermarket @ Bedok Market Place
- Cold Storage @ Siglap V
- Siglap Centre
- NTUC FairPrice @ Siglap New Market
- East Coast Lagoon Food Village
- Bedok Mall
- i12 Katong
- 50A Marine Terrace Market
- Marine Parade Central
- Parkway Parade
- Bedok 85 Market
- Giant Supermarket @ Bedok Market Place
- Global Indian International School (East Coast) (Within 1 km)
- Victoria School (Within 1 km)
- St. Patrick's School (Within 1 km)
- Opera Estate Primary School (Within 1 km)
- St. Stephen’s School (Within 1 km)
- Ngee Ann Primary School (Within 1 km)
- Global Indian International School (East Coast) (Within 1 km)
- Victoria School (Within 1 km)
- St. Patrick's School (Within 1 km)
- Opera Estate Primary School (Within 1 km)
- St. Stephen’s School (Within 1 km)
- Ngee Ann Primary School (Within 1 km)
Get in touch
Tabitha Teo
Associate Senior Consultant
CEA Reg. No.: R065117H / L3010958I
Isaac Liu
Associate Consultant
CEA Reg. No: R066165Z / L3010958I

