The Alcove
Sold
Property Details
Address
10 Lorong 27 Geylang, Singapore 388199
District
D01 Boat Quay / Raffles Place / Marina
Nearest MRT
Aljunied MRT (EW9)
Dakota MRT
Mountbatten MRT
Property Type
3 Room Condo
Developer
Sims Green Development Pte Ltd
Tenure
99 years
PSF
1,125.64
Floor Level
High Level
TOP
2004
Location
Property Overview
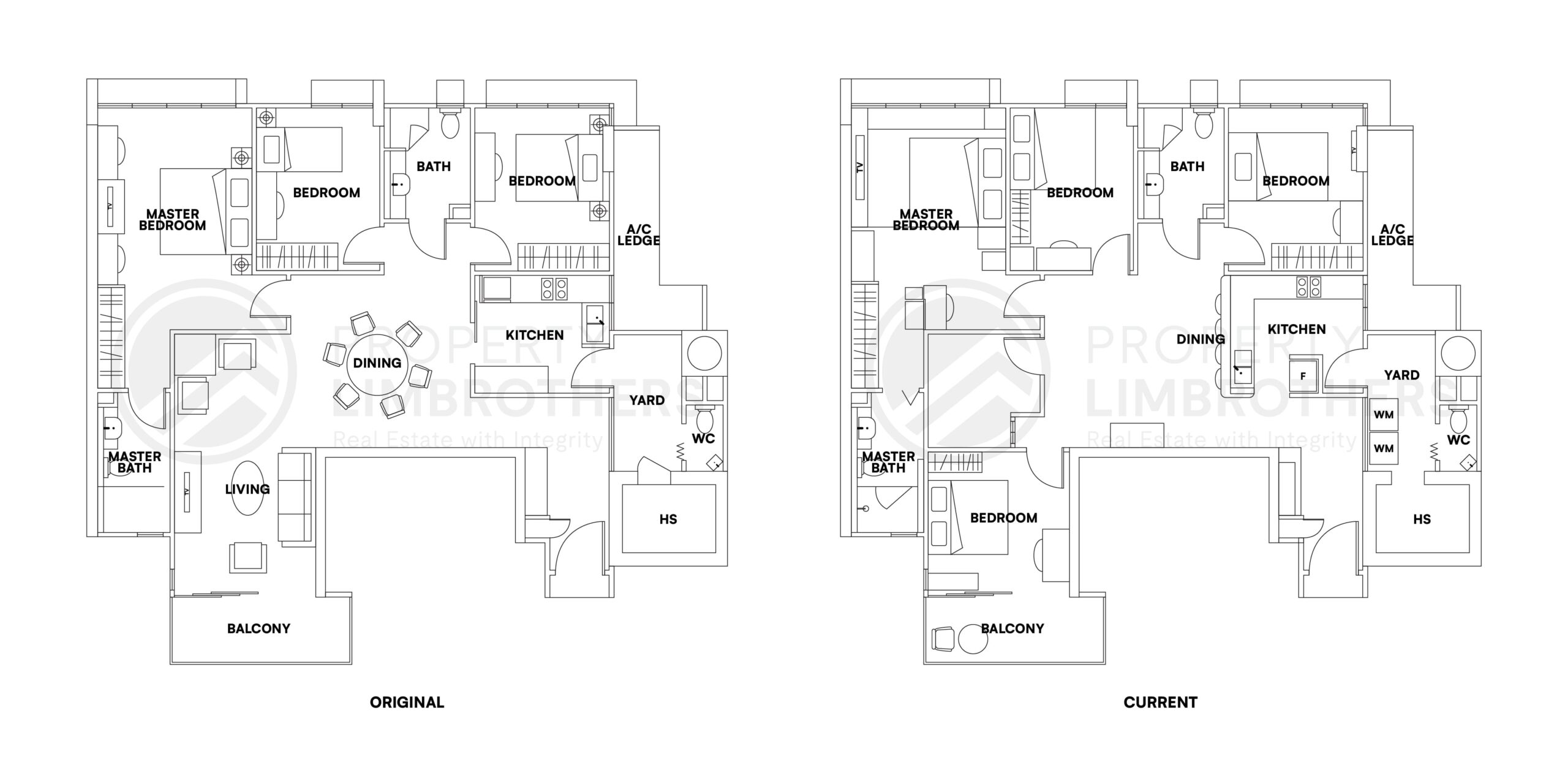
- 3-bedroom
- 3-bathroom
- 1,377 sqft
- 1,125.64 psf
A spacious 1,377 sqft high-floor unit in District 14, Geylang. This 99-year leasehold property has 3 bedrooms (currently configured as 5), 3 baths, and a balcony with east-facing views. Renovate to your style and enjoy high rental yields over 5%. Close to Aljunied MRT, shopping malls, and schools. Facilities include a swimming pool, BBQ area, and clubhouse. Monthly maintenance fee is $320. Contact for viewings.
Agent Info
Christina Tan
Associate Senior Investment Consultant
CEA Reg. No: R052721E / L3010958I
Features
- 3 bedrooms + 3 Baths
- High Floor
- Balcony + Yard
- Door and Balcony Facing: East
- Currently 5 Bedrooms
- Can easily Reconfigure back to 3 Bedrooms if needed
- A Unit you can Renovate to your style
- Can Sell with Tenancy or Vacant
- High Rental Yields more than 5%
- MSCT Fee: $320/month
Sun Direction
Virtual 3D Tour
Home Tour Video
Agent Info
Christina Tan
Associate Senior Investment Consultant
CEA Reg. No: R052721E / L3010958I
Tour with a Collaborative Consultant
Feel free to select a date at your convenience, and we will provide you with an exceptional journey
When are you available?
Choose one or more times that work for you.
- 10:00 AM
- 11:00 AM
- 12:00 PM
- 1:00 PM
- 2:00 PM
- 3:00 PM
- 4:00 PM
- 5:00 PM
- 6:00 PM
- 7:00 PM
- 8:00 PM
Share some information about yourself here
Thank You for connecting with PropertyLimBrothers! 🙌
Your submission has been successfully received. Our PLBCare Team will be reaching out to you shortly. Have a great day ahead!
Date
Selected Time
Connectivity
- HAO mart @ 448 Geylang Rd
- Food Loft @ 56/58 Lor 25A Geylang
- Pavilion Square
- FairPrice @ Geylang Rd
- Sheng Siong @ 301 Geylang Road
- Geylang East Centre Market & Food Corner
- Guan Guan Kopitiam @ Geylang East Ave 3
- City Plaza
- PLQ Mall
- Don Don Donki @ PLQ Mall
- Paya Lebar Square
- Giant Supermarket @ Paya Lebar Square
- Haig Road Market & Food Centre
- Singapore Sports Hub
- HAO mart @ 448 Geylang Rd
- Food Loft @ 56/58 Lor 25A Geylang
- Pavilion Square
- FairPrice @ Geylang Rd
- Sheng Siong @ 301 Geylang Road
- Geylang East Centre Market & Food Corner
- Guan Guan Kopitiam @ Geylang East Ave 3
- City Plaza
- PLQ Mall
- Don Don Donki @ PLQ Mall
- Paya Lebar Square
- Giant Supermarket @ Paya Lebar Square
- Haig Road Market & Food Centre
- Singapore Sports Hub
- Geylang Methodist School (Primary) (Within 1 km)
- Geylang Methodist School (Secondary) (Within 1 km)
- Kong Hwa School (Within 1 km)
- Broadrick Secondary School (Within 1 km)
- Chung Cheng High School (Main) (Within 1 - 2 km)
- Canossa Catholic Primary School (Within 1 - 2 km)
- Geylang Methodist School (Primary) (Within 1 km)
- Geylang Methodist School (Secondary) (Within 1 km)
- Kong Hwa School (Within 1 km)
- Broadrick Secondary School (Within 1 km)
- Chung Cheng High School (Main) (Within 1 - 2 km)
- Canossa Catholic Primary School (Within 1 - 2 km)
Get in touch
Wirdayu Safie
Associate Senior Consultant
CEA Reg. No: R058548G / L3010958I
Christina Tan
Associate Senior Investment Consultant
CEA Reg. No: R052721E / L3010958I

