Urban Vista
Sold
Property Details
Address
4 Tanah Merah Kechil Link, S465418
District
D16 Bedok / Upper East Coast
Nearest MRT
Tanah Merah MRT (EW4)
Bedok MRT (EW5)
Simei MRT (EW3)
Property Type
3 Room Condo
Developer
Bayfront Realty Pte Ltd
Tenure
99 years
PSF
1,198.65
Floor Level
Penthouse
TOP
2016
Location
Property Overview
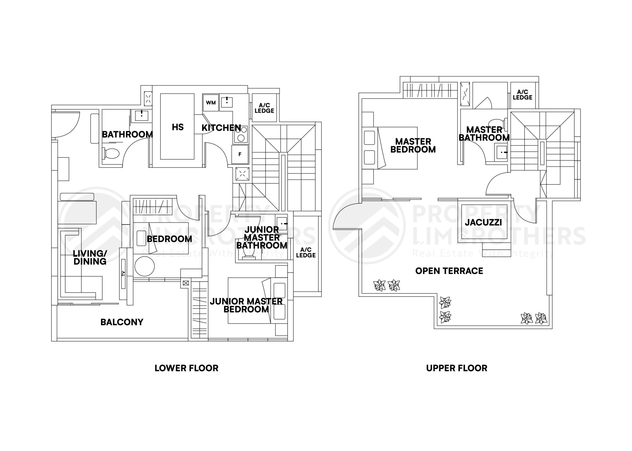
- 3-bedroom
- 3-bathroom
- 1,485 sqft
- 1,198.65 psf
The rare 3-bedder duplex penthouse is perfect for multi-generational families, offering spacious ensuite Master Bedrooms on both the upper and lower levels. This arrangement provides privacy and comfort for different generations living together. Additionally, there is a spacious common bathroom exclusively for the occupant of the Common Bedroom on the lower level.
One of the highlights of this penthouse is the rooftop terrace, where you can enjoy breathtaking sunset views over the serene landed enclave and the sea.
The location of Urban Vista is highly convenient, being just a 2-minute walk to Tanah Merah MRT station and the bus stop. The vicinity is also home to a wide range of eateries, shopping options, and schools, providing ample amenities for residents to enjoy.
This rare 3-bedder duplex penthouse at Urban Vista is a great choice for multi-generational families seeking comfort, convenience, and stunning views in a well-connected location. Contact us for a viewing today!
Agent Info
Features
- Duplex Penthouse
- All Bedrooms Able to fit Double Bed Comfortably
- Squarish Layout - Functional & Efficient
- Bright, Windy & Well-Ventilated
- No West Sun
- Quiet Internal Pool Facing
- Unblocked Landed Enclave & Sea View From Roof Terrace
- Well-Maintained Unit That You Can Easily Renovate to Suit Your Needs
- Main Door Facing: South-West
- Living Balcony Facing: South-East
Facilities
- 35M Swimming Pool
- Infinity Pool
- Kid’s Play Pool
- Jacuzzi
- Spa Pool
- Gym
- Outdoor Fitness Station
- Tennis Court
- Clubhouse
- Function Room
- BBQ Pavilion
Sun Direction
Virtual 3D Tour
Home Tour Video
Agent Info
Tour with a Collaborative Consultant
Feel free to select a date at your convenience, and we will provide you with an exceptional journey
When are you available?
Choose one or more times that work for you.
- 10:00 AM
- 11:00 AM
- 12:00 PM
- 1:00 PM
- 2:00 PM
- 3:00 PM
- 4:00 PM
- 5:00 PM
- 6:00 PM
- 7:00 PM
- 8:00 PM
Share some information about yourself here
Thank You for connecting with PropertyLimBrothers! 🙌
Your submission has been successfully received. Our PLBCare Team will be reaching out to you shortly. Have a great day ahead!
Date
Selected Time
Connectivity
- Tanah Merah Playground
- Bedok Shopping Complex
- East Village
- HAO Mart @ East Village
- Tanah Merah Playground
- Bedok Shopping Complex
- East Village
- HAO Mart @ East Village
- Bedok Green Primary School (Within 1 km)
- Bedok View Primary School (Within 1 km)
- Anglican High School (Within 1 km)
- Bedok South Secondary School (Within 1 km)
- St. Anthony's Cannosian Primary School (Within 1 km)
- St. Anthony's Cannosian Secondary School (Within 1 km)
- Temasek Primary School (Within 1 - 2 km)
- Fengshan Primary School (Within 1 - 2 km)
- Yu Neng Primary School (Within 1 - 2 km)
- Red Swastika School (Within 1 - 2 km)
- Changkat Primary School (Within 1 - 2 km)
- Bedok Green Primary School (Within 1 km)
- Bedok View Primary School (Within 1 km)
- Anglican High School (Within 1 km)
- Bedok South Secondary School (Within 1 km)
- St. Anthony's Cannosian Primary School (Within 1 km)
- St. Anthony's Cannosian Secondary School (Within 1 km)
- Temasek Primary School (Within 1 - 2 km)
- Fengshan Primary School (Within 1 - 2 km)
- Yu Neng Primary School (Within 1 - 2 km)
- Red Swastika School (Within 1 - 2 km)
- Changkat Primary School (Within 1 - 2 km)
Get in touch
Alexa Loh
Associate Senior Consultant
CEA Reg. No: R061738I / L3010958I
Loong Yanyan
Associate Senior Consultant
CEA Reg. No: R063939J / L3010958I

