Villa Verde
Sold
Property Details
Address
Verde Place, Singapore
District
D23 Dairy Farm / Bukit Panjang / Choa Chu Kang
Nearest MRT
Yew Tee MRT (NS5)
Choa Chu Kang MRT (NS4)
South View LRT (BP2)
Property Type
5 Room Landed
Developer
Keppel Land Limited
Tenure
99 years
PSF
1,473.68
TOP
1997
Location
Property Overview
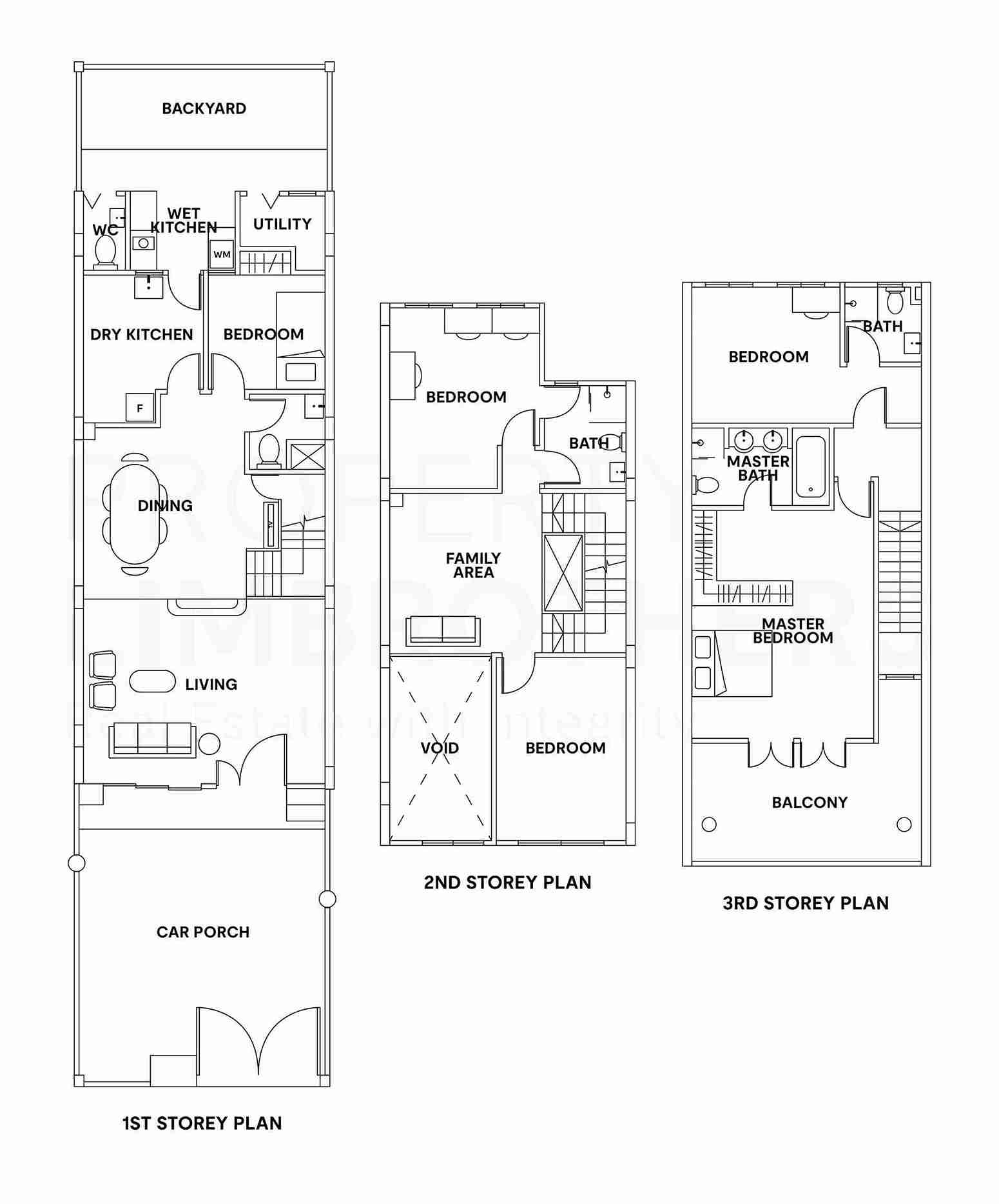
- 5-bedroom
- 5-bathroom
- 1,615 sqft
- 1,473.68 psf
Located in a quiet, exclusive landed enclave, this 3-storey inter-terrace at Villa Verde offers 5 spacious bedrooms, 5 bathrooms, and a utility room on a 1,615 sqft plot. With approximately 3,000 sqft of built-up space, this blank canvas is perfect for a gut renovation to suit your family’s needs. Enjoy a functional layout, North-South facing, and a prime location near Yew Tee MRT and shopping malls.
Agent Info
Features
- 3 Storeys Inter-Terrace
- Functional & Spacious Layout
- 5 spacious bedrooms (2 ensuite, 1 Jack & Jill) + Utility/Yard
- 4 Bathrooms + WC
- Blank Canvas, Great for Gut Renovation to Suit Your Family Needs
- Quiet & Exclusive Landed Enclave
Sun Direction
Virtual 3D Tour
Home Tour Video
Agent Info
Tour with a Collaborative Consultant
Feel free to select a date at your convenience, and we will provide you with an exceptional journey
When are you available?
Choose one or more times that work for you.
- 10:00 AM
- 11:00 AM
- 12:00 PM
- 1:00 PM
- 2:00 PM
- 3:00 PM
- 4:00 PM
- 5:00 PM
- 6:00 PM
- 7:00 PM
- 8:00 PM
Share some information about yourself here
Thank You for connecting with PropertyLimBrothers! 🙌
Your submission has been successfully received. Our PLBCare Team will be reaching out to you shortly. Have a great day ahead!
Date
Selected Time
Connectivity
- Villa Verde Park
- Choa Chu Kang ActiveSG Sports Centre
- S-11 Choa Chu Kang 787 Food Court
- Choa Chu Kang Park
- YewTee Point
- Yew Tee CC
- NTUC FairPrice @ Yew Tee Point
- Kopitiam Corner @ Yew Tee Square
- Yew Tee Market
- Limbang Shopping Centre
- NTUC FairPrice @ Limbang Shopping Centre
- Senja Hawker Centre
- Lot One
- Sheng Siong Supermarket @ Junction 10
- Villa Verde Park
- Choa Chu Kang ActiveSG Sports Centre
- S-11 Choa Chu Kang 787 Food Court
- Choa Chu Kang Park
- YewTee Point
- Yew Tee CC
- NTUC FairPrice @ Yew Tee Point
- Kopitiam Corner @ Yew Tee Square
- Yew Tee Market
- Limbang Shopping Centre
- NTUC FairPrice @ Limbang Shopping Centre
- Senja Hawker Centre
- Lot One
- Sheng Siong Supermarket @ Junction 10
- Regent Secondary School (Within 1 km)
- Yew Tee Primary School (Within 1 km)
- Teck Whye Primary School (Within 1 km)
- De La Salle School (Within 1 km)
- Chua Chu Kang Secondary School (Within 1 - 2 km)
- Unity Secondary School (Within 1 - 2 km)
- Regent Secondary School (Within 1 km)
- Yew Tee Primary School (Within 1 km)
- Teck Whye Primary School (Within 1 km)
- De La Salle School (Within 1 km)
- Chua Chu Kang Secondary School (Within 1 - 2 km)
- Unity Secondary School (Within 1 - 2 km)
Get in touch
Kee Seng Huat
Associate Senior Consultant
CEA Reg. No: R061423A / L3010958I
Angela Yee
Associate Senior Consultant
CEA Reg. No.: R065230E / L3010958I

